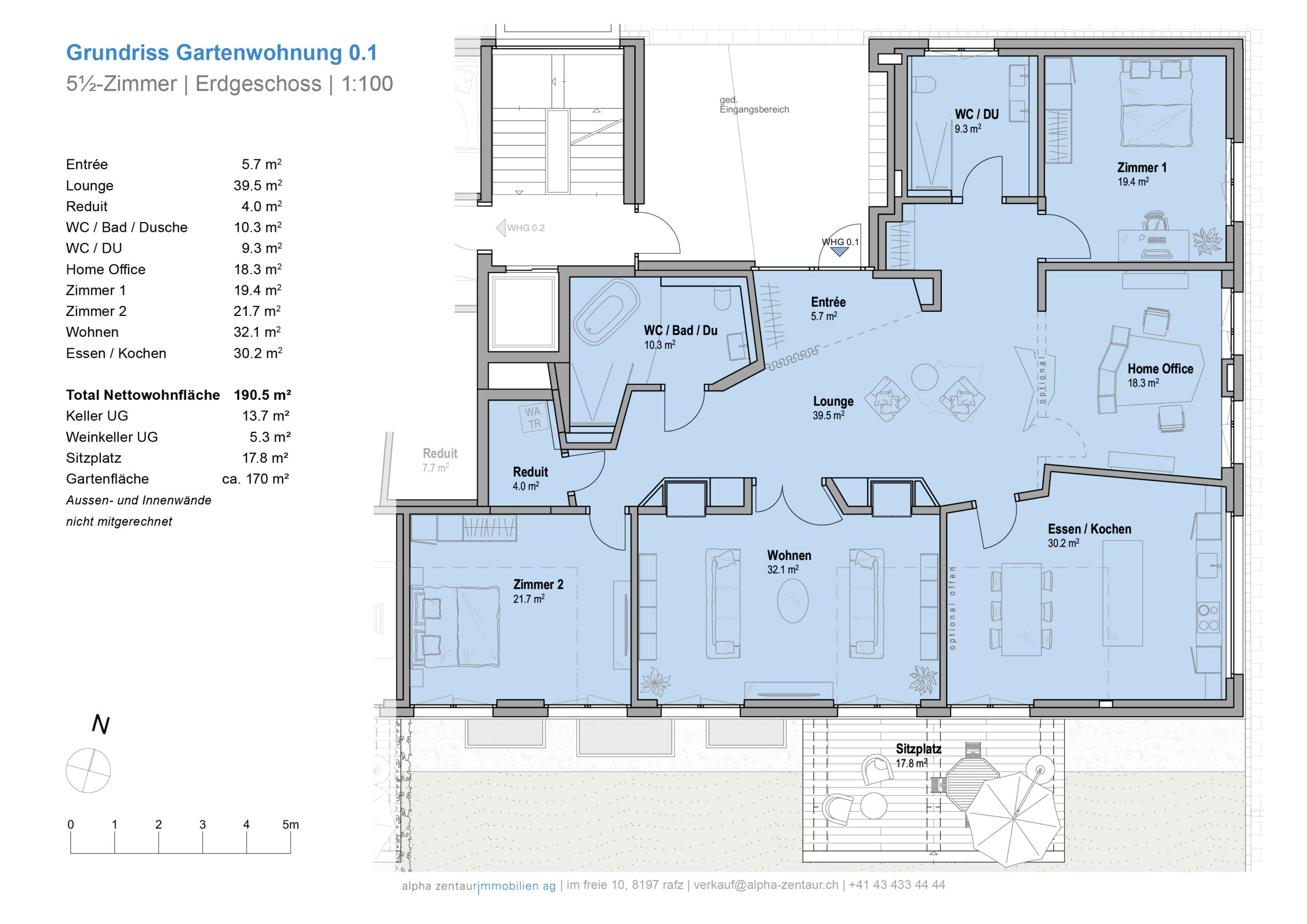
Wohnen in der ersten Reihe – Gartenwohnung 0.1
9694
190.5 m2
5.5
2
Beschreibung
Design – gönnen Sie sich das
Am Rand von Rafz, im Freie 10, erwartet Sie ein exklusives Wohnangebot mit klarer, reduzierter Architektur und luxuriösem, privatem Ambiente. Eine der beiden aussergewöhnlichen Wohnungen – inklusive Einliegerwohnung – ist bereits erstellt und verkauft. Eine hochwertige Einheit steht noch zum Erwerb bereit.
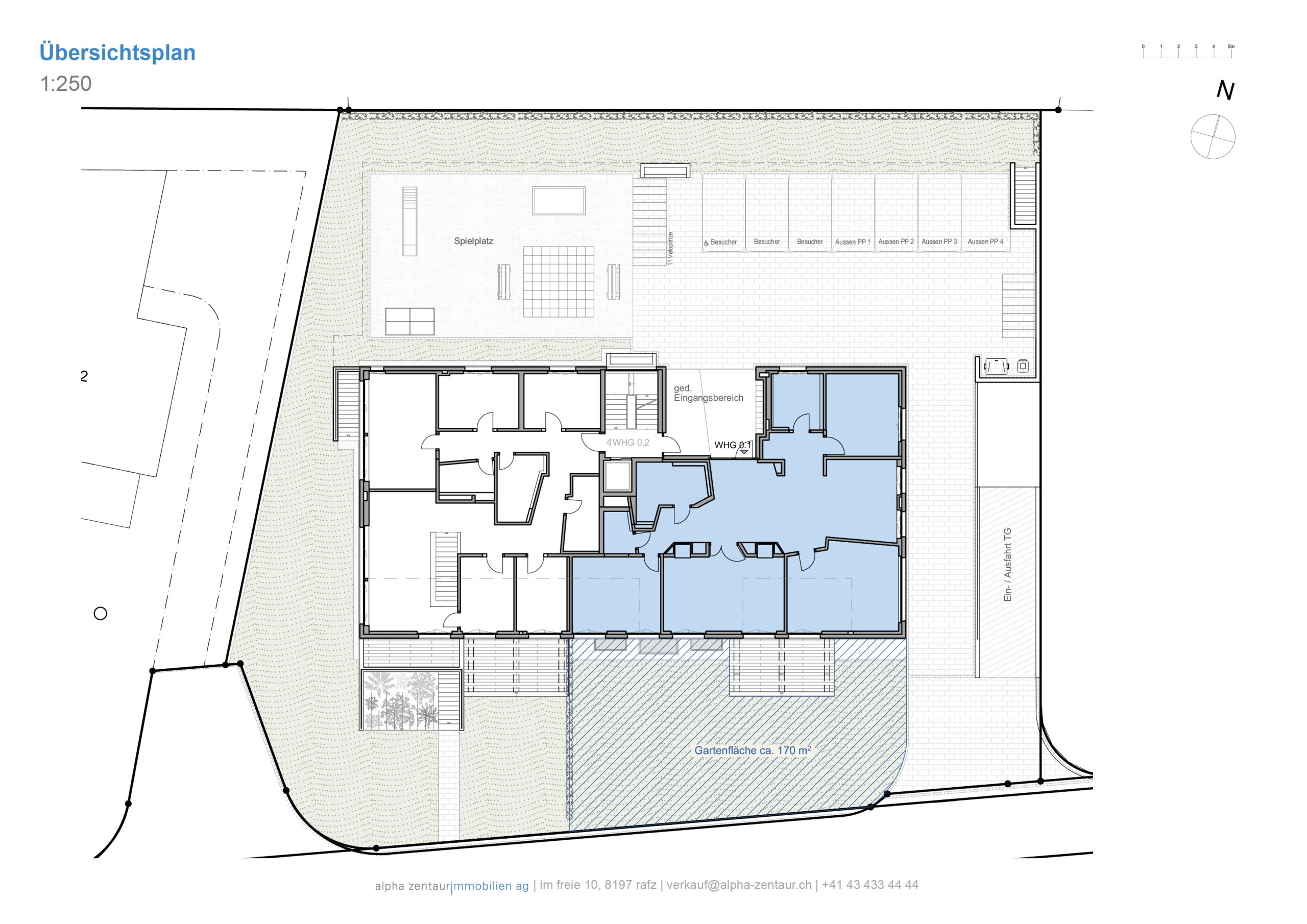
Die verfügbare 5.5-Zimmer-Wohnung überzeugt mit grosszügigen Flächen, privatem Gartenanteil und einem Wohnkonzept, das höchste Ansprüche erfüllt. Das gepflegte Mehrparteienhaus verfügt über eine Tiefgarage sowie zusätzliche Aussenparkplätze. Pro Wohnung sind zwei Tiefgaragenplätze reserviert, Aussenparkplätze können optional dazu erworben werden.
In der Wohnung 0.1 Südost
Ein Piano, ein Flügel – platziert im Eingangsbereich mit integriertem Leseraum? Das wäre ein perfektes Bonmot. Alles ist möglich. Nur nicht das gewöhnliche, das ewig gleichförmige. Die Wohnküche ist besonders grosszügig bemessen. Wenn gewünscht, kann dieser Raum direkt mit dem Wohnzimmer verbunden werden.
Adresse
Übersicht
- Objekt ID 9694
- Preis Preis auf Anfrage
- Immobilien Kategorie Mehrfamilienhaus, Wohnung
- Property status verfügbar
- Zimmer 5.5
- Badezimmer 2
- Baujahr 2017
- Wohnfläche 190.5 m2

