3.5 Zimmerwohnung 1.2 | Residenz Zentaur, Aarau
CHF 1'320'000
verfügbar
9694
87.9 m2
3.5
2
Beschreibung
Moderne Eigentumswohnungen an sonniger Lage in Aarau
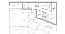
An der Weinbergstrasse 68 entstehen vier hochwertige 3.5- und 4.5-Zimmerwohnungen – vom Erdgeschoss mit privatem Garten bis zur attraktiven Attikawohnung. Das 4-Parteienhaus liegt in einem ruhigen, begehrten Wohnquartier an erhöhter Hanglage.
Bushaltestelle ca. 300 m entfernt, Bahnhof in rund 12 Minuten erreichbar.
Die Wohnungen bieten barrierefreien Zugang, grosszügige Grundrisse, Raumhöhen von ca. 2.70–3.00 m und zeitgemässe Architektur mit hohem Wohnkomfort.
Baubeginn März 2026!
Die Baubewilligung liegt bereits rechtskräftig vor.
Adresse
-
Land Schweiz
-
Province/State Zürich
Übersicht
- Objekt ID 9694
- Preis CHF 1'320'000
- Immobilien Kategorie Mehrfamilienhaus, Wohnung
- Property status verfügbar
- Zimmer 3.5
- Badezimmer 2
- Baujahr 2026
- Wohnfläche 87.9 m2

